Edificio en Zona de _ Alhendín, con 2005 m² construidos, 3 dormitorios, buen estado, exterior, ascensor, 3 plantas del edificio, cuota ibi: 3000€€
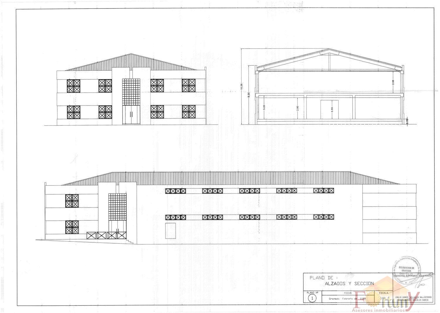
Especial nave industrial con una estratégica ubicación, a pie de carretera. Prevista parada de metro en la puerta en un periodo de 2 años. Construida en terreno urbanizable a 10 min del PTS y a 15 min del centro de Granada.
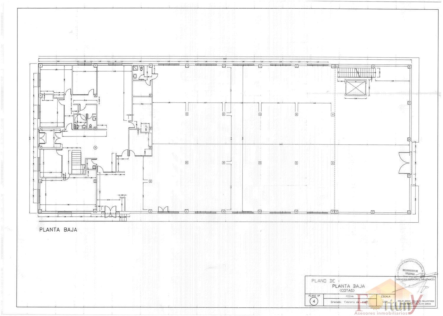
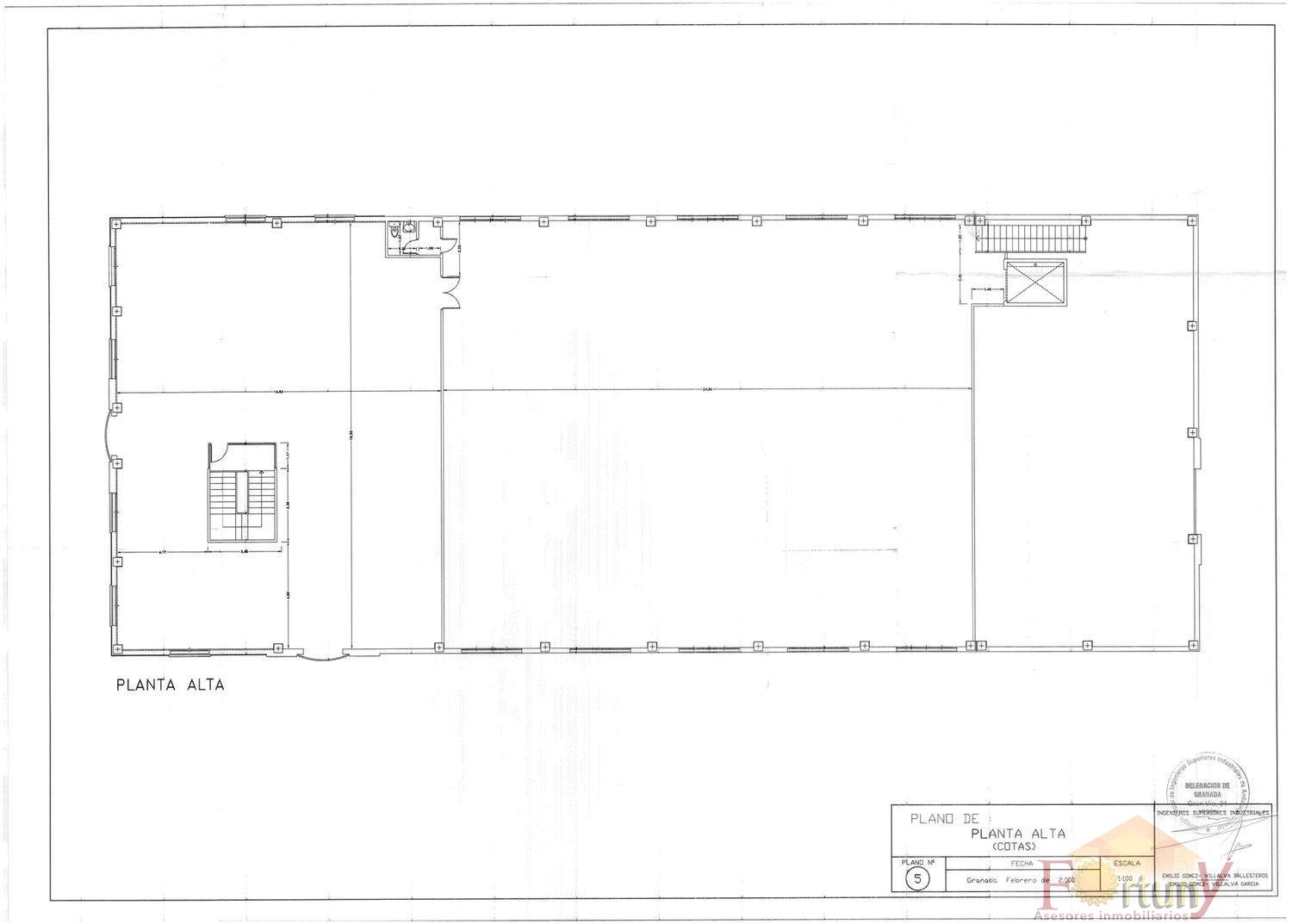
Distribuida en una planta baja de 1000m2 que cuenta con un amplio y luminoso espacio que ha sido destinado a oficinas y almacenaje, y cuenta con 3 baños y montacargas a la planta superior. Esta superficie es de 800m2 , también exterior, cuenta con una cocina- office, un baño y un amplio espacio de almacenaje. El sótano cuenta con 200m2.
En el exterior, encontramos un espacio de jardín y aparcamiento. Además cuenta con dos entradas, una de ella con espacio para camiones.
Esta nave ofrece numerosas posibilidades de logística, oficinas... No deje pasar esta oportunidad.
Para más información no dude en ponerse en contacto con nosotros: FORTUNY ASESORES INMOBILIARIOS Camila Olmos Rodriguez +34611655166 web: www.fortunyinmoasesores.com
E-mail: fortunyasesoresinmobiliarios@gmail.com
